有限会社アスパム|薬局専門の内装工事|都内関東近郊|リフォーム・リノベーション・修繕

 薬局・店舗工事 Pharmacy & Stores

HOME | 事業案内 | 薬局・店舗工事

 

ASPAMは
薬局に特化した
内装業者です

都内・関東近郊の薬局の全面改装から一部改装
調剤室増床工事・間仕切り工事・棚工事
壁紙工事・カウンター工事などを承ります。

 
 

ASPAMは
薬局に特化した
内装業者です

都内・関東近郊の薬局の全面改装から一部改装
調剤室増床工事・間仕切り工事・棚工事
壁紙工事・カウンター工事など承ります。
 
 

 
入口に隔離スペースを設け、受付カウンターやロビーチェアに飛沫感染予防用のアクリルパーテーションを設置するなど、設計段階から感染拡大防止に対応。

 
壁紙やカウンターなどの建材には抗ウイルス・抗菌性能を付加したものを使用します。また空間全体は光触媒コーティングにより屋内の空気を浄化します。

 
非接触セルフレジ、非接触型顔認識検温機を始め、ストリーマ除菌ユニット組み込みエアコン、天井殺菌灯、トイレなど、感染症対策に特化した設備をご用意いたします。

薬局施工事例

画像はクリックで拡大します

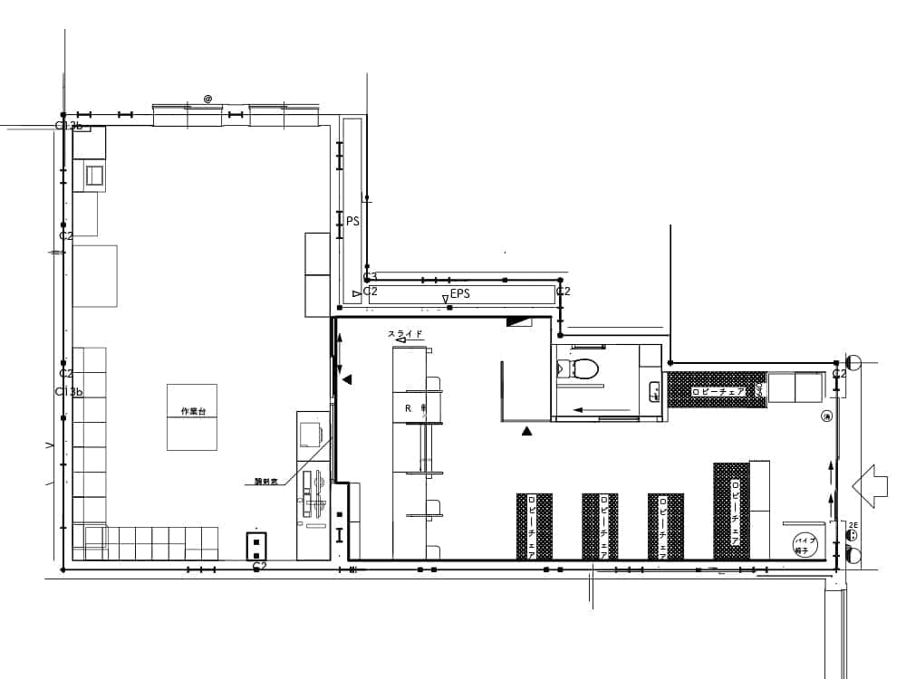
ホッタ晴信堂薬局様 立川駅前店(2021年8月)

内容:新規店舗改装工事

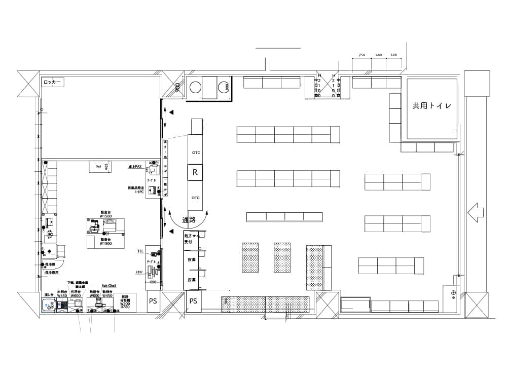
丘の上薬局様 下高井戸店(2021年8月)

内容:新規店舗改装工事

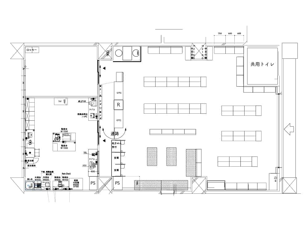
いけだ薬局様 駅前店(2021年8月)

内容:新規店舗改装工事

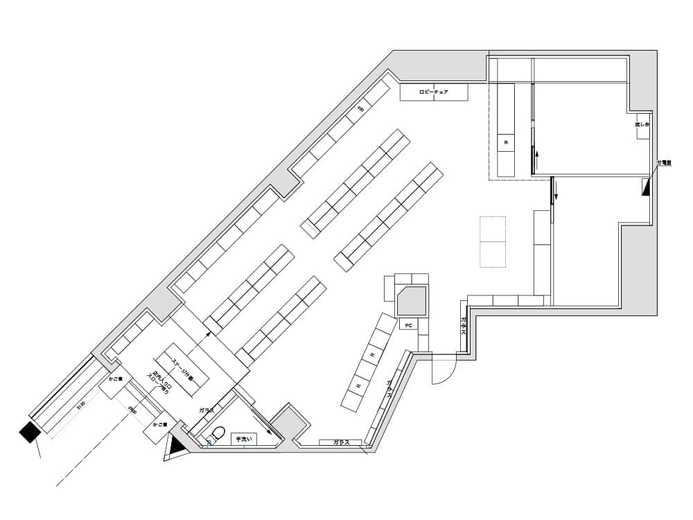
  • タサキ薬局様 大塚本店

 店舗改装工事(全面)
 

  • タサキ薬局様 薬のタサキ アトレヴィ大塚店

 店舗改装工事(全面)
 

  • ホッタ晴信堂薬局様 本店

 店舗改装工事(全面)
 

  • おばた薬局様

 店舗改装工事(全面)

薬局の他、飲食店・美容室等の店舗、工場、事務所等の内装工事も実績多数あります。お気軽にご相談ください。

感染症対策など、薬局や店舗の工事の実例をご紹介します。
マンション・一軒家のリフォーム工事の実例をご紹介します。
ご注文をいただいてから、着工(施工開始)までの流れをご案内します。